
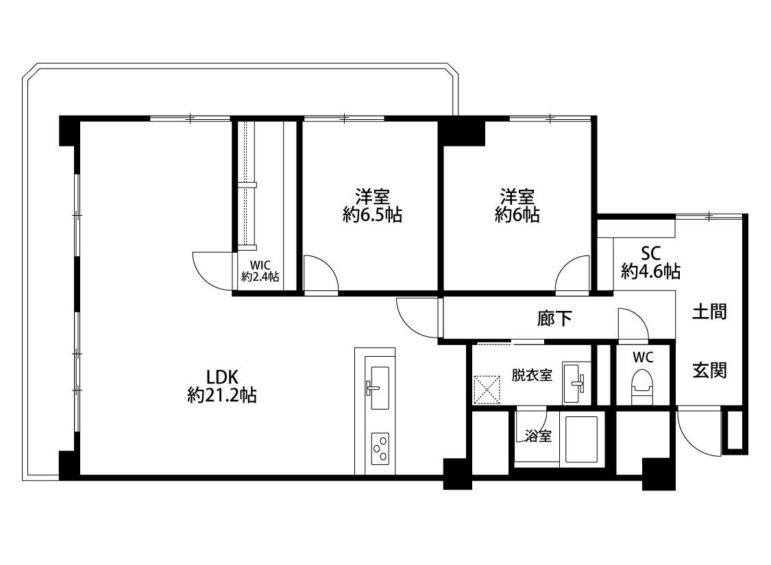
90㎡、角部屋4LDKを玄関土間ありの2LDKにフルリノベーション!
21帖超えの広々リビングには壁一面をモルタル仕上げに。
ワンちゃん・ネコちゃんと一緒に過ごせます。
3LDKに変更することも可能です。
| 物件所在地 | 福岡県福岡市南区平和4丁目1-20 |
|---|---|
| 交通 | 西鉄バス「長丘中学校前」約徒歩4分 |
| 構造/階数 | RC5階地下1階建/3階部分 |
| 築年月 | 昭和53年9月 |
| 総戸数 | 77戸 |
| 専有面積 | 90.10㎡ バルコニー面積:19.29㎡ |
| 間取り | 2LDK |
| 管理形態 | 全部委託・日勤 |
| 管理費・修繕積立金 | 9,010円/月・19,822円/月 |
| 販売価格 | 相談 |
| 取引様態 | 売主 |
間取図

内観・外観写真



















































お客様のご要望やライフプラン、資産背景などをもとに、
最適な不動産投資をご提案いたします。
まずはお気軽にご相談ください。